Exklusiv
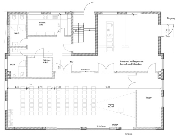
Im Raum Passat sind Sie ganz für sich im Nachbargebäude der Hofholzallee 151. Er ist so konzipiert, dass das gesamte Tagungserlebnis von der Kaffeepause bis zum Mittagsimbiss hier stattfindet. Eigene WCs stehen zur Verfügung. Das große, eigene Foyer und eine Terrasse bieten Platz für Gruppenarbeiten und kreative Pausen – zu welchen wir Sie wie gewohnt mit frischen, saisonalen Leckereien aus unserer Fischers Fritz Küche verwöhnen.
Modernste Ausstattung
Der Raum ist ausgestattet mit modernstem Tagungsequipment unseres Partners Hugo Hamann GmbH & Co. KG. Vom 98 Zoll Touch Display bis zur professionellen Beschallungsanlage ist hier alles auf dem neuesten Stand der Technik. Jeder Tisch ist versehen mit eigener Steckdose mit 230V, USB und USB C-Zugang.




